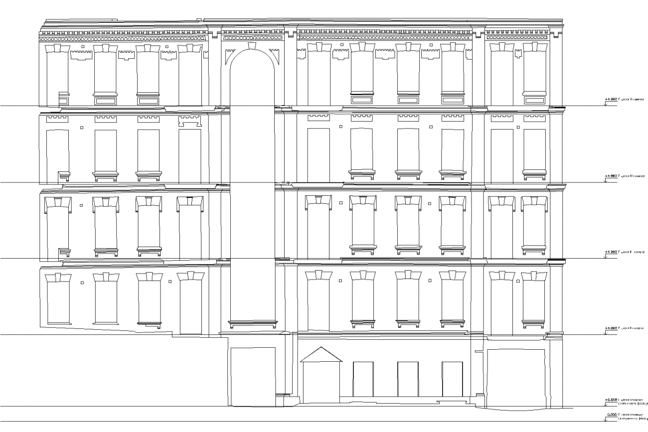
Modelling of Archutectural Elements

SPM3D

Laser scanning for cultural heritage preservation

Old building in the center of Kyiv.

#3d modelling

  • LOCATION:

    Bohdana Khmelnytskogo Str., Kyiv, Ukraine

  • TIME SPENT:

    4 days in field 21 days for processing

  • Final Product:

    3D Mesh models CAD Drawings

  • SHARE:
DID YOU LIKE OUR WORK?

Contact us and we will provide you with best-price offers and individual data processing tailored to your specifications